Bigger families, blended households, and the dream of having a little extra breathing room have made five-bedroom barndominiums one of the most searched floor plan styles right now.
And honestly, it makes complete sense.
Soaring ceilings, sun-drenched open layouts, and a floor plan roomy enough to give everyone their own little corner of the world; that’s exactly what draws people to this style.
A barndominium wraps the soul of rustic architecture around genuinely livable, modern design, and the five-bedroom version takes that vision even further.
This guide is your starting point for finding a layout that feels less like a blueprint and more like a daydream worth building.
So, What Even is a Barndominium?
A barndominium is exactly what it sounds like, a home built from or inspired by a barn structure, blending rustic, industrial character with fully functional living spaces.
The concept started in rural America as a practical housing solution but has since grown into a full-blown design movement.
Unlike traditional homes, barndominiums typically feature metal or wood exteriors, vast open floor plans, and soaring ceilings that feel anything but ordinary.
Families are drawn to them for the sheer breathing room they offer, the charm you simply cannot replicate with a cookie-cutter build, and the flexibility to design every corner on your own terms.
What to Think About Before Choosing Your Floor Plan?
Before you commit to a layout, make sure it actually works for your life.
A five-bedroom barndominium is a significant investment of space and money, so getting the bones right from the start saves a lot of second-guessing down the road.
- Layout and flow matter more than square footage; an open-concept design feels expansive and connected, while segmented layouts offer privacy and defined spaces for busier households.
- Bedroom placement sets the tone for how the home functions daily, whether that’s a main-level master suite for parents or clustered rooms that keep kids close.
- Functional spaces like mudrooms, laundry rooms, and flex rooms are what separate a pretty floor plan from one that holds up to real, everyday living.
- Outdoor integration, through wraparound porches or patio extensions, blurs the line between inside and outside in the best possible way.
The right floor plan feels intuitive, like the home was designed around your routine rather than the other way around.
Top 5-Bedroom Barndominium Layout Trends
Floor plan trends have come a long way from boxy rooms and predictable layouts. These are the styles that families are actually gravitating toward right now, and for good reason.
1. Open Concept Great Room Focus
The great room layout brings the kitchen, dining, and living areas into one connected, flowing space. It’s ideal for families who want to stay in the same orbit even when everyone’s doing something different.
Entertaining feels effortless, daily routines feel less fragmented, and the sheer openness of it gives the whole home a grounded, welcoming energy.
2. Split Floor Plans for Privacy
A split floor plan puts the master suite on one end and the secondary bedrooms on the other, and once you’ve lived in one, it’s hard to go back.
It naturally reduces noise carry, gives parents a genuine retreat, and keeps the chaos of a busy household contained to the right corners of the home.
3. Multi-Generational or Dual Master Suites
Designing for more than one generation under one roof calls for more than just extra bedrooms. Dual master suites offer privacy, dignity, and independence for in-laws, aging parents, or long-term guests.
Each suite functions as its own retreat, making shared living feel comfortable rather than cramped.
4. Flexible Bedroom Pods
Not every bedroom needs to stay a bedroom forever.
Flexible pods are designed with extra square footage, built-in storage, or convertible layouts that make it easy to shift a room from guest space to home office to gym as life changes. It’s a thoughtful design that grows with you.
5. Lofted and Split-Level Designs
Barndominiums are ideal for lofted layouts, utilizing barn-style vertical space for upper bedrooms, reading nooks, or bonus areas that feel tucked away but connected.
It adds dimension to the floor plan in a way flat layouts simply cannot.
Examples of Popular Five-Bedroom Barndominium Floor Plans
Not every five-bedroom floor plan is built the same, and that’s honestly what makes this style so exciting. Here are some of the most popular plan types families are drawing inspiration from right now.
Plan A: Single-Story Spacious Layout
Ideal For: Families who want everything on one level, no stairs, no compromises.
This layout stretches wide rather than tall, giving every bedroom generous square footage without stacking a single one. The master suite typically anchors one end while four additional bedrooms line the opposite wing.
An open kitchen flows into the living and dining areas at the center, making the whole home feel connected and easy to move through.
Plan B: Two-Story Family Hub
Ideal For: Larger families who want shared living below and private sleeping quarters above.
The main floor carries all the social weight, kitchen, dining, living, and guest spaces, while the upper level becomes a dedicated sleep zone for the family.
Some plans carve out a bonus loft or secondary living area upstairs, giving kids or teenagers their own space to decompress without retreating entirely from the household.
Plan C: Barndo with Shop or Garage Addition
Ideal For: Rural homeowners, hobbyists, or anyone running a small operation from home.
This plan attaches a working shop, oversized garage, or storage wing directly to the main living structure. The home itself loses nothing in comfort or layout, but gains serious functionality on the side.
It’s a particularly popular choice for properties with acreage where the land calls for more than just a living space.
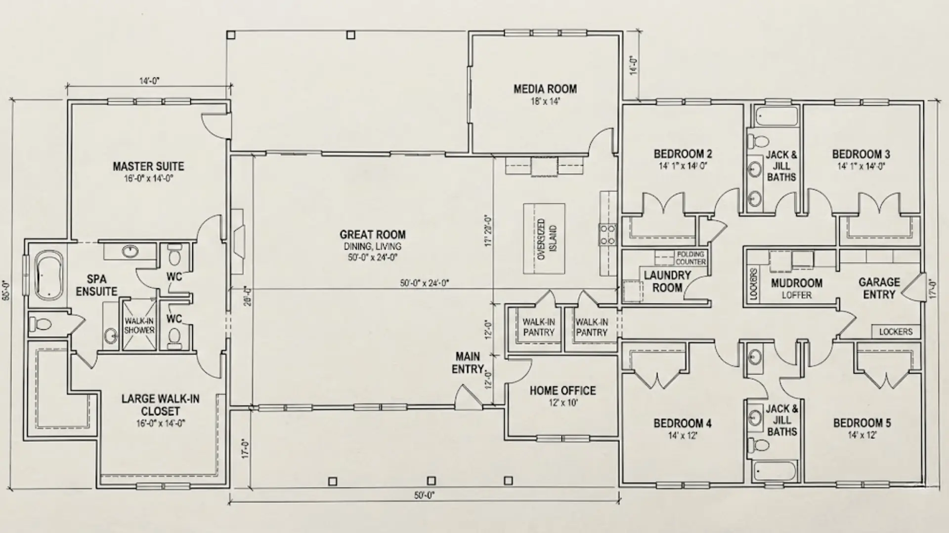
Plan D: Luxury Layout with Bonus Spaces
Ideal For: Homeowners who want the full package, bedrooms, a home office, media room, and mudroom all under one roof.
Square footage is used intentionally here. Beyond the five bedrooms, this plan folds in dedicated spaces that make daily life genuinely more comfortable.
A mudroom handles the chaos at the entry, a home office keeps work separate from living, and a media room gives the whole family a reason to stay in on weekends.
Plan E: Courtyard or U-Shaped Layout
Ideal For: Families who want outdoor living woven directly into the floor plan.
The U-shaped design wraps around a central courtyard or outdoor living area, blurring the boundary between inside and outside in a way that feels intentional rather than accidental.
Bedrooms, common areas, and outdoor spaces all connect naturally, making it a strong choice for warmer climates or anyone who treats the backyard as an extension of the home.
Plan F: Dual-Wing Layout for Multi-Generational Living
Ideal For: Households accommodating parents, in-laws, or adult children under one roof.
Two distinct bedroom wings extend from a shared central core, giving each side of the family real privacy without requiring a separate structure.
Each wing can include its own bathroom configuration and sitting area, while the kitchen and main living space remain communal. It functions like two homes that politely share a heart.
Design Tips for Five-Bedroom Barndominium Interiors
Getting the floor plan right is only half the work; how you design the interior is what turns a well-laid-out house into a home that actually feels good to live in.
These tips are small in effort but make a big difference in how the space comes together.
- Oversized windows and clerestory placements pull natural light deep into the floor plan, reducing the need for artificial lighting and making every room feel more open and alive.
- Vaulted ceilings with exposed wooden beams are the signature move of barndominium interiors for a reason; they add height, warmth, and architectural character that no amount of decor can replicate.
- Built-in storage along hallways, under staircases, and within bedroom closets keeps a five-bedroom home from feeling cluttered without eating into usable square footage.
- Consistent flooring throughout the main living areas creates visual continuity that makes the open layout feel intentional and cohesive rather than pieced together.
- A neutral base palette with warm wood and matte black accents ages beautifully in barndominium interiors and gives every room a grounded, lived-in quality that holds up well over time.
Good interior design in a barndominium is less about following trends and more about leaning into what the structure already offers: the height, the rawness, the light, and letting those qualities do most of the heavy lifting.
What is the Cost to Build a 5-Bedroom Barndominium?
Building a five-bedroom barndominium is a significant financial decision, and costs can vary widely depending on size, layout, and the materials you choose.
Here is a clean breakdown to help you plan realistically.
| Factor | Details | Estimated Cost Range |
|---|---|---|
| Small Build | Single-story, basic finishes, around 2,500 sq ft | $150,000 to $250,000 |
| Mid-Range Build | Single or two-story, upgraded finishes, 3,000 to 3,500 sq ft | $250,000 to $400,000 |
| Luxury Build | Custom layout, premium materials, 4,000+ sq ft | $400,000 to $650,000 |
| Single vs Two-Story | Two-story is more cost-efficient at larger sizes | Saves roughly 10 to 15% on foundation and roofing |
| Metal Frame Shell | Most common, durable, and fastest to build | $20 to $35 per sq ft |
| Wood Frame Shell | Traditional feel, slightly higher labor costs | $25 to $40 per sq ft |
| Basic to Mid Finishes | Flooring, cabinetry, standard fixtures | $50 to $100 per sq ft |
| Premium Finishes | Custom cabinetry, quartz, hardwood, spa bathrooms | $100 to $150 per sq ft |
| Site Preparation | Land clearing, septic, well, and electrical for rural builds | $20,000 to $60,000 |
Labor costs, location, and contractor availability can shift these numbers considerably, so treat this as a planning baseline rather than a fixed budget.
The Bottom Line
Five-bedroom barndominium floor plans offer something that most home styles simply cannot: the rare combination of space, character, and the freedom to design around your actual life.
Building for a growing family, planning for multiple generations, or finally ready to stop compromising on square footage, there is a layout out there that fits.
Take your time, trust your instincts, and let the process be enjoyable. The right plan will feel less like a decision and more like a natural next step.
Which layout style resonates most with you? Drop your thoughts in the comments below!






